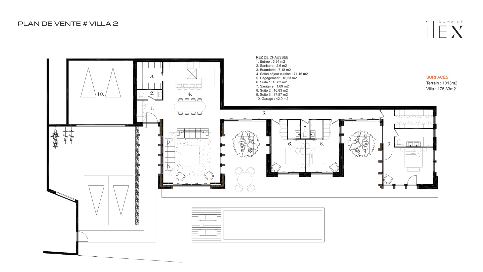
La Villa 2 développe 176,33 m² habitables sur un terrain de 1 313 m², avec une organisation de plain-pied particulièrement recherchée. L’espace de réception de 71,16 m² s’ouvre largement sur les terrasses et la piscine, tandis que trois suites, dont une master de 37,87 m², offrent un confort rare sur ce segment. Le garage de 42,9 m² complète l’ensemble avec une capacité et une fonctionnalité à la hauteur du standing.
La force de ce plan réside dans sa distribution horizontale fluide et la présence d’une véritable suite principale, configuration extrêmement prisée par une clientèle internationale exigeante.

La parcelle, délimitée en blanc au cœur de la résidence Ilex à Cassis, bénéficie d’une situation centrale tout en restant en retrait de l’entrée principale. Implantée le long de la voie interne, elle profite d’un accès direct et fluide, tout en étant entourée de jardins privatifs et d’une végétation dense qui préserve les vues et l’intimité.
Sa position intermédiaire au sein du domaine lui assure un équilibre recherché entre proximité des accès et environnement résidentiel calme, dans un tissu composé exclusivement de villas individuelles de standing.
.png)
Un chef-d'œuvre architectural
Ce terrain n'est pas qu'une simple parcelle ; c'est la toile blanche sur laquelle vous allez peindre votre rêve. Grâce à ses caractéristiques uniques, il offre la possibilité de construire une maison véritablement exceptionnelle – une résidence qui marquera les esprits et qui sera en parfaite harmonie avec le prestige de Cassis.
Nous avons déjà conçu une vision architecturale époustouflante pour ce site. Ce projet de maison est pensé pour maximiser : les volumes et la lumière naturelle.
Les vues imprenables sur les environs.Un design qui allie luxe moderne et charme méditerranéen.Ce n'est pas une maison standard ; c'est un futur havre de paix sur mesure, conçu pour une vie d'exception.
.png)
Découvrez une architecture prestigieuse où chaque détail est réflechi avec minutie. Les plans proposés sont fournis à titre illustratif, ne sont pas contractuels. Le permis de construire fait foi.



Les aménagements extérieurs ont été pensés avec exigence afin d’offrir un cadre de vie sécurisé, raffiné et parfaitement intégré au site.
Sur la voie privée, la clôture se compose d’un mur bahut habillé de pierre, surmonté d’une grille en ferronnerie noir laqué, pour une finition haut de gamme.
En limites séparatives, un mur bahut de 80 cm complété par un grillage rigide vert RAL 6005, doublé de végétation, assure intimité et harmonie paysagère, sans excéder 2 m de hauteur.
Le muret en pierre existant, conservé en bon état, participe au charme du lieu. L’entrée est valorisée par un ensemble complet porche, portail et portillon, tandis que restanques et murs de soutènement structurent le terrain avec élégance.
Au Domaine Ilex, la décoration intérieure a été pensée comme une expérience sensorielle à part entière. Les matériaux nobles s’y expriment pleinement : bois aux teintes chaleureuses, pierres minérales aux textures subtiles, finitions mates et surfaces douces au toucher composent des intérieurs à l’élégance naturelle.
La lumière, omniprésente, glisse sur les volumes et révèle chaque détail, créant des atmosphères calmes et enveloppantes. Les tons neutres et minéraux dialoguent avec des accents contemporains pour offrir des espaces à la fois apaisants, raffinés et profondément ancrés dans l’esprit méditerranéen.
.png)

.avif)